1 этап проектирования
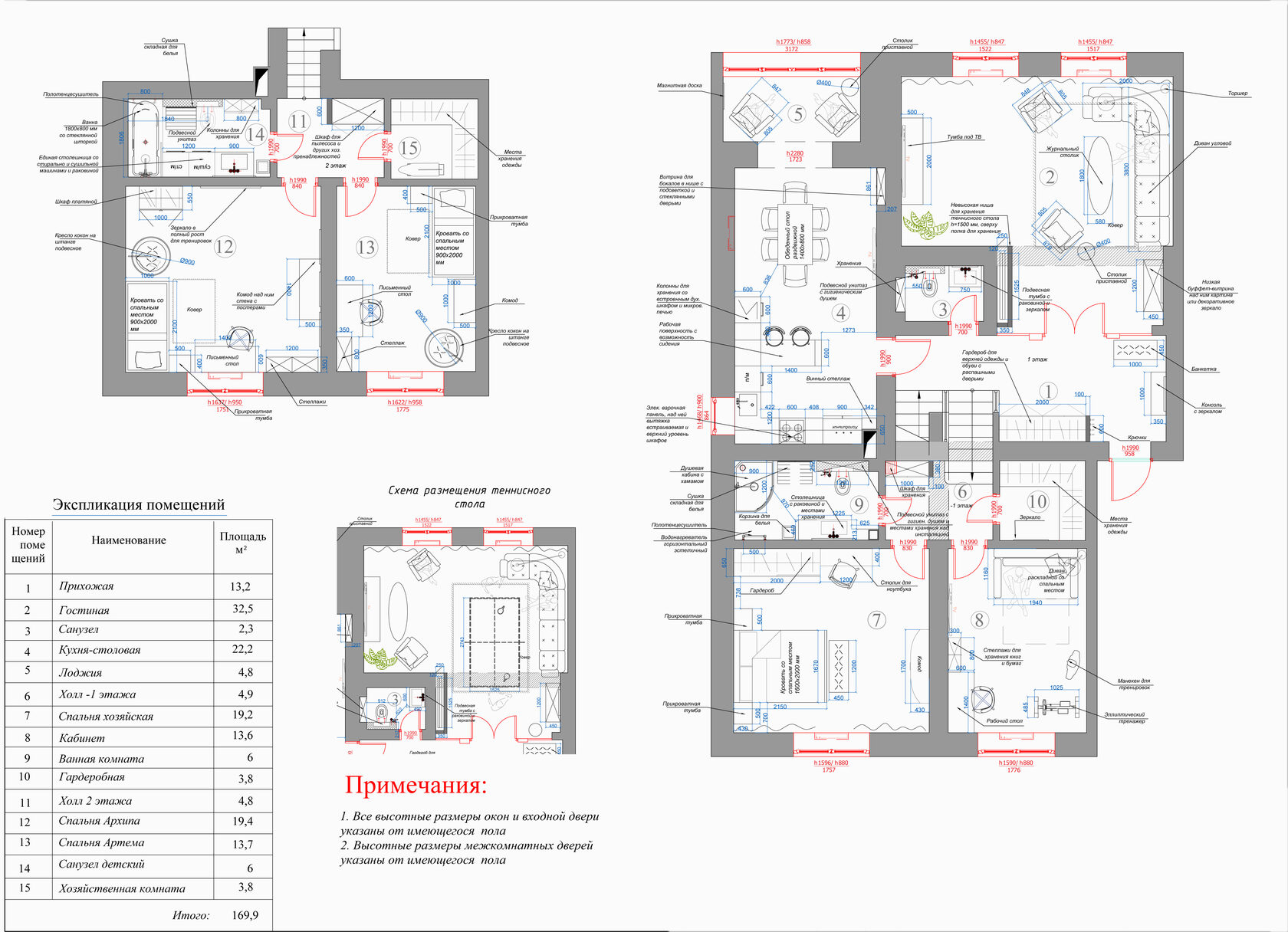
Планировочное решение
Несколько вариантов планировок с детальной проработкой предметного наполнения
Является первый и самым важным этапом в проектировании
2 этап проектирования
3 d визуализации будущего интерьера по формату фотографии
Так же 3 d визуализации можно заменить на Концепт-коллаж
3 этап проектирования
Рабочая документация
Включает в себя чертежи для выполнения отделки, электрики, сантехники, разрезы и развертки помещений. Они учитывают все особенности проекта, для точного выполнения задуманного концепта
Являет собой строительный документ, который дает возможность бригаде изучить все необходимые моменты для отделки
This site was made on Tilda — a website builder that helps to create a website without any code
Create a website